Großzügiges Familienhaus in ruhiger Ortsrandlage mit viel Platz und Potenzial
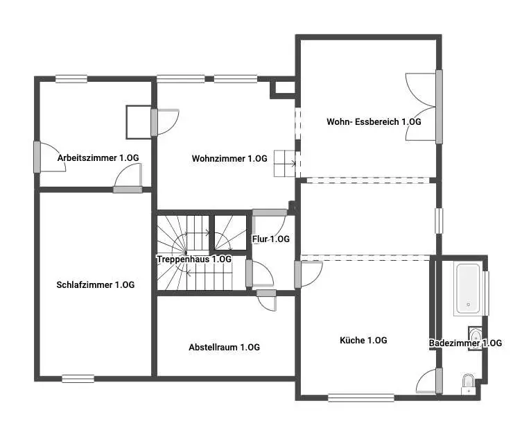
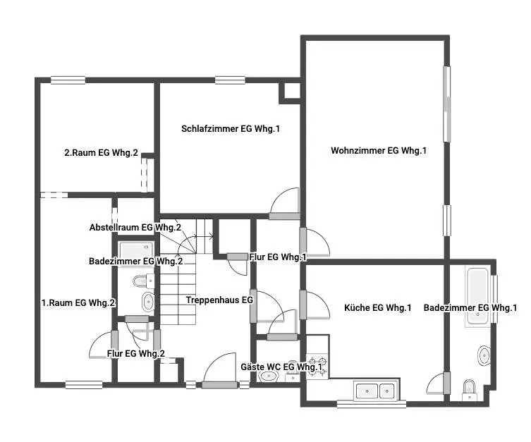
Dieses außergewöhnliche Wohnhaus bietet ideale Bedingungen für Familien, die Raum zum Leben und Entfalten suchen. Auf ca. 257 m² Wohnfläche und einem 1.034 m² großen Grundstück genießen Sie eine ruhige Lage am Ortsrand mit viel Privatsphäre und Platz für Kinder.
Das Haus überzeugt durch flexible Nutzungsmöglichkeiten – perfekt für große Familien oder Mehrgenerationenwohnen. Großzügige Wohnbereiche, mehrere Schlafzimmer, ein offener Wohn-/Essbereich sowie zusätzliche Ausbaureserven bieten viel Spielraum für individuelle Wohnkonzepte.
Ein besonderes Highlight ist die große, direkt angebundene Scheune (ca. 100 m²), ideal für Hobbys, Werkstatt oder zusätzlichen Stauraum. Der weitläufige Garten lädt zum Spielen, Entspannen und gemeinsamen Familienleben im Freien ein.
Zusätzlicher Pluspunkt: Möglichkeit zur Abtrennung eines weiteren Baugrundstücks.
Fazit: Viel Platz, ruhige Lage und zahlreiche Möglichkeiten – ein ideales Zuhause für Familien mit Zukunftsplänen.
