zurück zur

Objektübersicht

Ansprechendes und energiesparendes Toskanahaus mit Einliegerwohnung

Beim Kauf dieser wunderschönen Villa fallen für Sie keine Maklerkosten an. Zusätzlich erstatten wir Ihnen 150.000 € für Nebenkosten sowie für mögliche Änderungswünsche.
Darüber hinaus ist das gesamte Inventar im Wert von ca. 50.000 € bereits im Kaufpreis enthalten.
----------------------------------
Dieses moderne und energiesparende Einfamilienhaus mit vermieteter Einliegerwohnung wurde im Jahre 2008 fertiggestellt. Die Kunststofffenster mit elektrischen Außenrollläden bieten einen U-Wert von 0,6. Beheizt wird über die Erdwärmepumpe, das Lüftungssystem mit Wärmerückgewinnung und die Warmwasseraufbereitung läuft über die Solaranlage mit ca. 750 Liter Warmwasserspeicher und vier Klimaanlagen auf beide Etagen. Das Objekt ist mit Fußbodenheizung ausgestattet. Des weiteren verfügt das Gebäude über eine Untersohlendämmung von 10 cm, einer Wanddämmung von 14 cm und einer Deckendämmung im DG von 24 cm. Der Primärenergiebedarf liegt laut Energieausweis bei 31,24 kWh/(m²a). Für das Haus liegt ein DEKRA Zertifikat vor und ein Blower-Door-Test ist ebenfalls vorhanden.
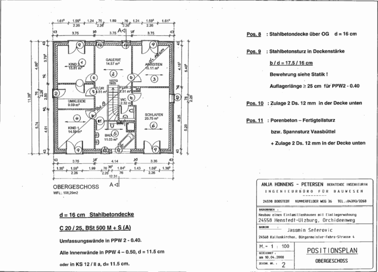
Das Erdgeschoss teilt sich auf in den großzügigen Eingangsbereich, das Gäste-WC, den geräumigen Hauswirtschaftsraum, die moderne Einbauküche mit Granitarbeitsplatte und Terrassentür sowie das Wohnzimmer mit Zugang zum Garten.
Das Obergeschoss bietet den sehr geräumigen Flurbereich (bei Bedarf kann ein weiteres Zimmer geschaffen werden), das separate WC, das sehr geräumige und helle Vollbad mit separater Dusche und WC sowie vier gut geschnittene Zimmer. Eines der Zimmer verfügt über ein Ankleidezimmer.
Außerdem befindet sich im EG die ca. 50m² große Einliegerwohnung mit Duschbad, offener Einbauküche zum Wohnbereich und Schlafzimmer.
Haus und Einliegerwohnung werden frei geliefert.

Objekt Haus
Ort Henstedt-Ulzburg
Preis 1.250.000 €

Objektdaten

Flächen
Wohnfläche
ca. 217,00 m²
Nutzfläche
ca. 30,00 m²
Grundstücksfläche
ca. 467,00 m²
Anzahl Zimmer
11
Anzahl Schlafzimmer
5
Anzahl Badezimmer
3
Anzahl Balkon / Terrasse
1
Balkon/Terrassenfläche
ca. 40,00 m²
Gartenfläche
ca. 120,00 m²
Anzahl Stellplätze
4
Verwaltungsinformationen
Vermietet
Ja
Als Ferienwohnung nutzbar
Ja
Zustandsangaben
Baujahr
2008
Letzte Modernisierung
2020
Zustand
Gepflegt

Energie & Heizung

Energieausweisliegt vor
Energie­ausweistypVerbrauchsausweis
Erstellt am01.10.2025
Gültig bis30.09.2035
Endenergieverbrauch31,24 kWh/(m²·a)
Mit WarmwasserJa
PrimärenergieträgerErdwärme
EnergieeffizienzklasseA
EnergieeffizienzklasseA
HeizungsartFußbodenheizung
HeizungsartFußbodenheizung
A+
A
B
C
D
E
F
G
H

Preisinformation

Kaufpreis
1.250.000 €
Provisionspflichtig
Ja
Käuferprovision
0,00 % auf den Kaufpreis inkl. MwSt
Provisionshinweis
Die Provision für den Käufer in Höhe von 0,00 % auf den Kaufpreis inkl. MwSt. ist bei notariellem Vertragsabschluss fällig und vom Käufer an die QUINZZ. GmbH zu zahlen.

Lage

Henstedt-Ulzburg ist eine Großgemeinde im Kreis Segeberg in Schleswig-Holstein und entstand 1970 aus dem Zusammenschluss der Gemeinden Henstedt (mit Henstedt-Rhen), Ulzburg (mit Ulzburg-Süd) und Götzberg. Sie liegt rund 30 km nördlich von Hamburg an der A 7 sowie an der Regionalbahn der AKN (HVV-Linien A 1, A 2 und A 3). Henstedt-Ulzburg ist an der Aufbauachse Nord in der Hamburger Metropolregion direkt nördlich von Norderstedt sowie südlich von Kaltenkirchen gelegen.
In Ulzburg befindet sich das Ortszentrum der Gemeinde mit dem Rathaus und Facheinzelhandel. Henstedt hingegen konnte sich seinen ländlichen Charakter deutlicher bewahren. Es gibt größtenteils lockere Bebauung mit Einzel- und Reihenhäusern und nur sehr wenige Mehrfamilienhäuser. Ulzburg Süd entstand in großen Teilen erst in den vergangenen Jahren, wo einige Neubaugebiete entstanden sind. Der Rhen ist der südlichste Ortsteil Henstedt-Ulzburgs. Götzberg bewahrte sich weitgehend seinen ursprünglichen Charakter. Der Ortsteil liegt völlig getrennt vom Rest der Gemeinde etwa drei Kilometer östlich von Henstedt auf einer Anhöhe.
Der Ort verfügt über alle Schularten des dreigliedrigen Schulsystems. Freizeitmöglichkeiten in Henstedt-Ulzburg sind vielfältig: Seit 2009 entstand ein Großsportverein mit rund 200 Übungsleitern Der neue SV Henstedt-Ulzburg konkurriert mit dem VfL Pinneberg (5543 Mitglieder) um den Titel des größten Sportvereins in Schleswig-Holstein. Mit 56 Jugendteams dürfte der SVHU 2009 die größte Jugendabteilung im Lande haben. Zu erwähnen ist auch das Naturbad Beckersberg: ein Freibad an einem naturbelassenen Badesee in zentraler Ortslage.

Kontakt

Senden Sie mir gern Ihre Anfrage. Im Anschluss erhalten Sie alle Details und ich setze mich mit Ihnen in Verbindung. 

 Pierre, Mon
Mon Pierre
Haberstraße 6
24537 Neumünster
Telefon0170 9611 220