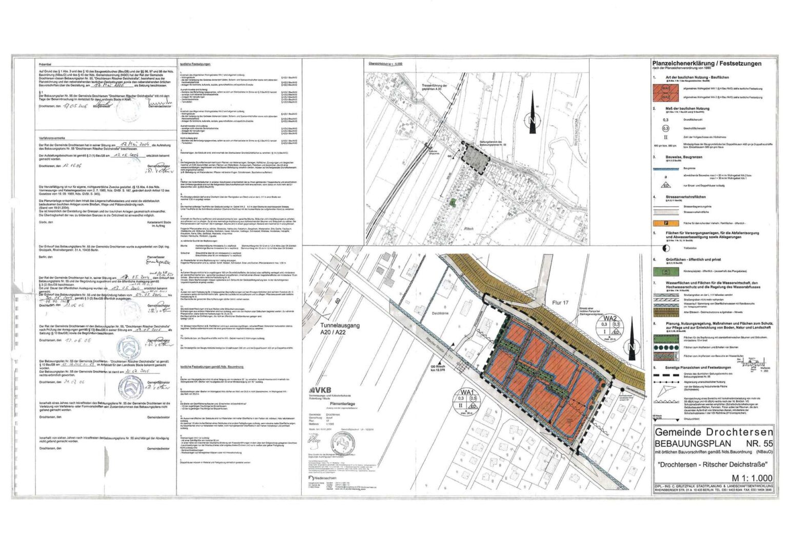
Bei diesem Angebot handelt es sich um ein 3365 m² großes Flurstück mit zwei Baufeldern.
Die Bebauung ist gemäß Bebauungsplan Nr. 55 "Drochtersen - Rittscher Deichstraße" der Gemeinde Drochtersen geregelt.
Auf dem vorderen Baufeld (Ritscher Straße) befindet sich ein Altbestand (Einfamilienhaus, Baujahr 1920), der derzeit noch an die Gemeinde vermietet ist und zur Unterbringung von Flüchtlingen genutzt wird.
Nach Auszug der derzeitigen Nutzer ist das Gebäude nicht mehr bewohnbar und gilt als Abrissobjekt.
Der wirtschaftliche Wert liegt ausschließlich im Grundstück und den möglichen Neubauoptionen.
Der Mietvertrag ist ungekündigt. Die Mieteinnahmen belaufen sich derzeit auf 980,- €/Monat (Kaltmiete).
Auf dem hinteren Baufeld (Deichgrundstück) befindet sich lediglich ein altes, Gartenhäuschen (Nurdachhaus).
Die Erschließung (Zufahrt) muss entweder über das vordere Grundstück oder über die Ritscher Deichstraße erfolgen. Wobei die Ritscher Deichstraße zum jetzigen Zeitpunkt nicht mit einem PKW befahrbar ist.
