zurück zur

Objektübersicht

Hier stimmt das Preis- Leistungsverhältnis

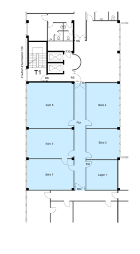
Das 14.100 m² große Büro- und Geschäftshaus aus dem Jahr 1982 weist insgesamt 5 Bürogeschosse auf. Im Erdgeschoss sind gastronomische Betriebe angesiedelt. Weiterhin ist Sixt mit einer Autovermietung ansässig. Das Objekt ist durch 3 separate Treppenhauskerne mit Personenaufzügen erschlossen. Ein Regelgeschoss hat eine Fläche von ca. 2.400 m² Fläche kann effizient unterteilt werden. Aufgrund der individuellen Grundriss – und Raumgestaltung sind Nutzungen von Großraum bis hin zu Einzel – und Teambüros möglich. Die Ausstattung und Raumaufteilung erfolgt in enger Absprache mit dem Vermieter. PKW-Stellplätze können bei Bedarf angemietet werden.

Objekt Büro/Praxis
Ort Hamburg
Preis 13,20 €

Objektdaten

Flächen
Gesamtfläche
ca. 1.140,00 m²
Bürofläche
ca. 250,00 m²
Zustandsangaben
Zustand
Teil/Vollrenoviert

Energie & Heizung

Energieausweisbei Besichtigung

Preisinformation

Gesamtmiete
13,20 €
Nebenkosten
3,30 €
Heizkosten
in Nebenkosten enthalten
Mietpreis/m²
9,90 €
Provisionshinweis
Ab einer Vertragslaufzeit von 3 Jahre provisionsfrei
Kautions Hinweis
3 Bruttowarmmieten

Lage

Das 14.100 m² große Büro- und Geschäftshaus aus dem Jahr 1982 weist insgesamt 5 Bürogeschosse auf. Im Erdgeschoss sind gastronomische Betriebe angesiedelt. Weiterhin ist Sixt mit einer Autovermietung ansässig. Das Objekt ist durch 3 separate Treppenhauskerne mit Personenaufzügen erschlossen. Ein Regelgeschoss hat eine Fläche von ca. 2.400 m² Fläche kann effizient unterteilt werden. Aufgrund der individuellen Grundriss – und Raumgestaltung sind Nutzungen von Großraum bis hin zu Einzel – und Teambüros möglich. Die Ausstattung und Raumaufteilung erfolgt in enger Absprache mit dem Vermieter.
PKW-Stellplätze können bei Bedarf angemietet werden.

Kontakt

Senden Sie mir gern Ihre Anfrage. Im Anschluss erhalten Sie alle Details und ich setze mich mit Ihnen in Verbindung. 

 Sönnichsen, Robin
Robin Sönnichsen
Osterbekstraße 90a
22083 Hamburg
Telefon+49 40 278 986 61