Beim Kauf dieser wunderschönes Haus, fallen für Sie keine Maklerkosten an. Zusätzlich erstatten wir Ihnen 20.000 € für Nebenkosten sowie für mögliche Änderungswünsche.
Darüber hinaus ist das gesamte Inventar im Wert von ca. 20.000 € bereits im Kaufpreis enthalten.
------------------------------.
Dieses wunderschöne Reihenmittelhaus wurde im Jahr 2019 vollständig fertiggestellt und befindet sich noch immer in einem neuwertigen Zustand.
Das Haus eignet sich perfekt für eine junge Familie oder auch für eine größere Familie mit mehreren Kindern. Durch die durchdachte Raumaufteilung bietet es viel Platz, Komfort und eine warme, einladende Atmosphäre.
Raumaufteilung und Wohnkomfort
Das Haus überzeugt mit einer durchdachten Raumaufteilung auf rund 126 m² Wohnfläche, verteilt auf drei Etagen – ideal für Familien, die Wert auf Platz und Komfort legen.
Im Erdgeschoss befindet sich der großzügige Wohn- und Essbereich mit einer offenen, modernen Einbauküche sowie ein Gäste-WC. Große Fenster sorgen hier für viel Tageslicht und eine einladende Wohnatmosphäre.
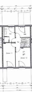
Das 1. Obergeschoss bietet zwei helle Schlafzimmer, ein modernes Badezimmer sowie ein praktisches Ankleidezimmer.
Im 2. Obergeschoss erwartet Sie die traumhafte Galerie, die als großzügiges Elternschlafzimmer mit eigenem Badezimmer und Ankleidebereich gestaltet ist – ein Rückzugsort zum Wohlfühlen.
Nachhaltig wohnen – mit moderner Technik und Wohlfühlklima
Die innovative Fernwärmeversorgung über das zentrale Blockheizkraftwerk sorgt nicht nur für angenehme Wärme in jedem Raum, sondern auch für ein gutes Gewissen gegenüber der Umwelt.
Hochwertige, dreifach verglaste Fenster schaffen das ganze Jahr über ein behagliches Wohnklima, während die moderne Be- und Entlüftungsanlage stets für frische Luft und ein gesundes Raumgefühl sorgt.
Ihr privates Gartenparadies
Treten Sie hinaus auf Ihre großzügige Terrasse und genießen Sie den Blick in Ihren eigenen Garten. Hier verbringen Sie entspannte Sommerabende mit Freunden, während Ihre Kinder sicher und unbeschwert spielen.
Der liebevoll angelegte Garten wird zu Ihrer grünen Oase der Erholung – ein Ort, an dem Sie zur Ruhe kommen, neue Energie tanken und einfach die Seele baumeln lassen können.
