Entdecken Sie diese charmante und geräumige Mehrfamilienhaus-Immobilie, die ideale Investitionsmöglichkeit für wachstumsorientierte Käufer. Dieses beeindruckende Anwesen bietet eine hervorragende Gelegenheit, in den Immobilienmarkt einzusteigen oder Ihr bestehendes Portfolio zu erweitern.
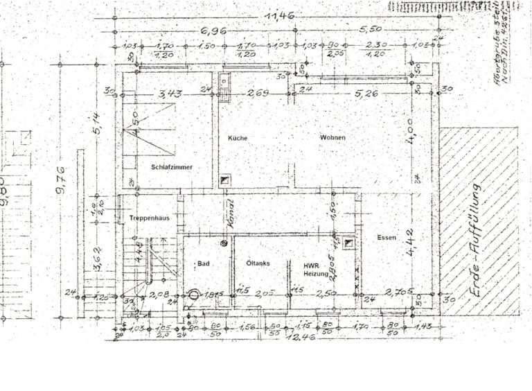
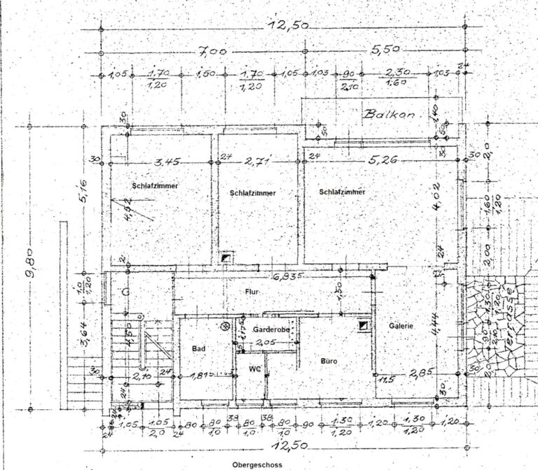
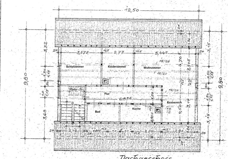
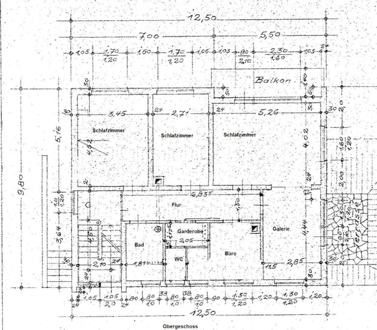
Mit einer großzügigen Wohnfläche von insgesamt 272 Quadratmetern bietet dieses Mehrfamilienhaus ausreichend Platz für mehrere Wohneinheiten. Die Immobilie verfügt über zwei separate Wohnungen, die jeweils mit eigenen Eingangsbereichen und individuellen Grundrissen ausgestattet sind.
Jede Wohnung ist durchdacht gestaltet und bietet eine komfortable Wohnatmosphäre. Die Einheiten verfügen über geräumige Wohnzimmer, moderne Küchen mit hochwertiger Ausstattung, helle Schlafzimmer und stilvolle Badezimmer. Dank der großen Fenster und der durchdachten Raumaufteilung genießen die Bewohner in jeder Wohnung viel natürliches Licht und eine optimale Raumnutzung.
Das Mehrfamilienhaus befindet sich in einem ausgezeichneten Zustand und wurde regelmäßig gewartet und modernisiert. Zu den Highlights der Immobilie gehören:
- Energieeffiziente Heizungsanlage
- Moderne Elektrik und Sanitäranlagen
- Gepflegte Gemeinschaftsbereiche, einschließlich eines geräumigen Treppenhauses und eines einladenden Eingangsbereichs
- Ausreichend Stellplätze für Bewohner und Gäste
- Großzügiger Gartenbereich, der zur gemeinsamen Nutzung zur Verfügung steht und eine Oase der Ruhe und Entspannung bietet
Dieses Mehrfamilienhaus bietet nicht nur eine hervorragende Renditemöglichkeit, sondern auch das Potenzial, eine beständige und zuverlässige Einkommensquelle zu schaffen. Die Lage in einer beliebten und nachgefragten Wohngegend gewährleistet eine hohe Mieternachfrage und langfristige Wertsteigerung.
Beide Wohnungen sind vermietet. Dachgeschosswohnung 590,00 € Kaltmiete, Maisonette 1200,00 € Kaltmiete.
Nutzen Sie diese einmalige Gelegenheit, um in eine solide und lukrative Immobilieninvestition zu investieren. Kontaktieren Sie uns noch heute, um einen Besichtigungstermin zu vereinbaren und mehr über dieses außergewöhnliche Mehrfamilienhaus zu erfahren.
