Hier ist alles fertig!
Hochwertige Einheit inmitten wunderschöner Natur und Seenlandschaft!
Mit einer eigenen 70 Meter Strandlänge und Bootshaus.
Auch als Dauerwohnsitz denkbar - nach behördlicher Ummeldung!
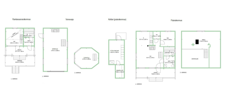
Diese zwei grossartigen Ferienhäuser mit einem separaten Bootshaus in Asikkala Vesansalo, bieten eine einzigartige Möglichkeit, die Ruhe der Natur und Nähe der Gewässer zu geniessen. Das im Jahr 1991 fertiggestellte Blockhaus-Hauptgebäude befindet sich im guten Zustand und bietet das ganze Jahr mit seinem grossen Grundstück am See, einen angenehmen Rahmen für eine abwechslungsreiche Freizeitgestaltung.
Im Hauptgebäude befinden sich eine grossräumige Stube mit offenem Kamin aus Ziegelsteinen sowie eine offene Küche. Neben dem Schlafzimmer bietet der Dachboden mehr Schlafmöglichkeiten.
Das Kellergeschoss weist neben dem Erdkeller warmen Bastel- und Aufbewahrungsplatz auf.
In der Sauna des Hauptgebäudes ermöglicht der elektrische „Sofort-heiß-Saunaofen“ schnellen Genuss des Dampferlebnisses.
Direkt anliegend, kommt man auf einem kleinen Fussweg zum Strandgebäude. Diese bietet eine weitere traditionell holzbeheizte Sauna. Vom Steg der Strandsauna ist es nur noch ein Sprung in das sommerlich warme oder in das winterlich erfrischend kühle Wasser. Die Strandgebäude bieten ebenso eine gemütliche Stube mit eigenem Kamin sowie ein Dachboden für zusätzliche Schlaf- & Wohnunterbringung.
Päijät-Häme Gebiet bietet hier nur das Beste an Ausstattung, Möglichkeiten, Erholung und Abwechslung in der freien, unberührten Natur. Machen Sie hieraus Ihr persönliches Paradies!
Auch als Dauerwohnsitz denkbar - mit behördlicher Ummeldung. Der Eigentümer gibt gern Unterstützung!
